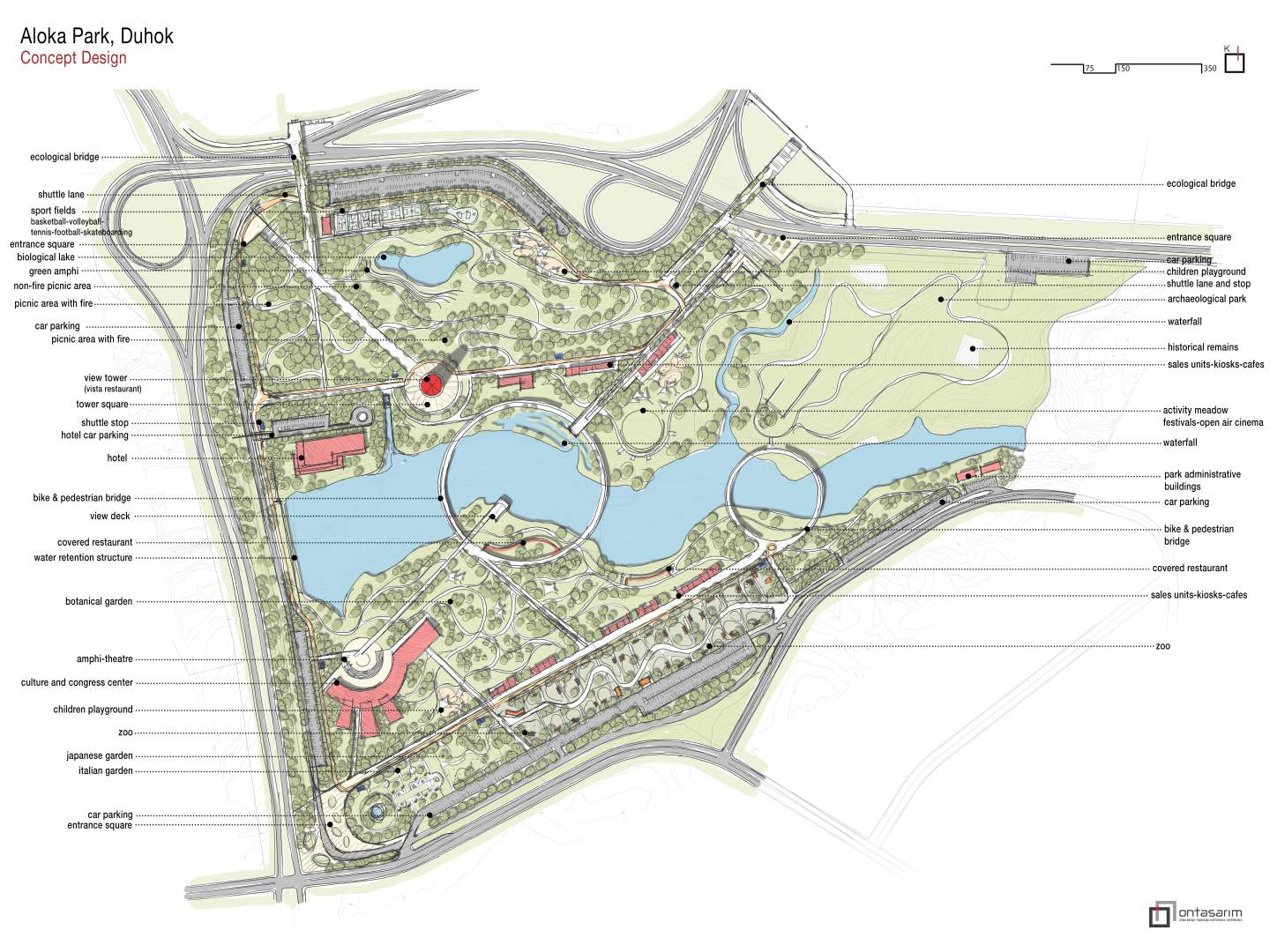
The Dohuk Governorate's Public Central Park LocationDohuk, IraqArea1.689.128 m²Year2025Show on mapStatusunder constructionTypecity park ClientThe Dohuk Governorate Project Gallery Previous ProjectThe Coastal Line of Rize Next ProjectAtatürk Children's Park